| Ingatlan adatai: | |||
|---|---|---|---|
| Hiv. szám: | TL1762 | Ügyintéző: |
Kiss Balázs +36 70/541-1458 |
| Megye: | Vas | Állapot: | 5 - Nagyon jó |
| Település: | Szombathely | Építés éve: | 2022 |
| Típus: | Lakás | Tájolás: | DNY |
| Szobaszám: | 3 | Fűtés mód: | Házközponti egyedi méréssel |
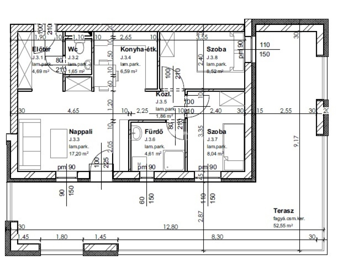
| Lakóterület: | 53 m2 | Telek terület: | N/A m2 |
| Emelet: | 3 | Erkély: Terasz: Lift: Kert: | Nincs Van: 52 m2 Nincs Nincs |
| Építési mód: | Tégla | Garázs:Kocsibeálló: | Nincs Van |
| Ingatlan adatai: | |||
|---|---|---|---|
| Hiv. szám: | TL1762 | ||
| Ügyintéző: |
Kiss Balázs +36 70/541-1458 | ||
| Megye: | Vas | ||
| Állapot: | 5 - Nagyon jó | ||
| Település: | Szombathely | ||
| Építés éve: | 2022 | ||
| Típus: | Lakás | ||
| Tájolás: | DNY | ||
| Szobaszám: | 3 | ||
| Fűtés mód: | Házközponti egyedi méréssel | ||
| Lakóterület: | 53 m2 | ||
| Telek terület: | N/A m2 | ||
| Emelet: | 3 | ||
| Erkély: Terasz: Lift: Kert kapcsolat: | Nincs Van: 52 m2 Nincs Nincs | ||
| Építési mód: | Tégla | ||
| Garázs: Kocsibeálló: | Nincs Van | ||
Megjegyzés:
KIZÁRÓLAG IRODÁNK KÍNÁLATÁBAN!
Szombathely Oladi városrészen 2022-es téglaépítésű 20 lakásos társasházban 53 m2-es nappali + 2 szobás újszerű Penthouse lakás eladó 52 m2-es terasszal, saját gépkocsi beállóval.
Zöld övezet, remek kilátás jellemzi a D - Ny-i tájolású 3. emeleti nappali + 2 szobás ingatlant, helyiségeit tekintve nappali, konyha, két szoba, külön fürdővel és WC - vel rendelkezik.
A lakás fűtése egyedi szabályozású házközponti fűtés, padlófűtéssel, ezen kívül klímával felszerelt.
Az ingatlanhoz zárt udvaron egy saját gépkocsi beálló tartozik, melyet a vételár magában foglal.
Birtokba adás 2026.év vége.