| Ingatlan adatai: | |||
|---|---|---|---|
| Hiv. szám: | SZH-B | Ügyintéző: |
Kiss Balázs +36 70/541-1458 |
| Megye: | Vas | Állapot: | Új ép. |
| Település: | Gyöngyösfalu | Építés éve: | 2026 |
| Típus: | Ház | Tájolás: | NY |
| Szobaszám: | 4 | Fűtés mód: | Hőszivattyús |
| Lakóterület: | 75 m2 | Telek terület: | 677 m2 |
| Emelet: | N/A | Erkély: Terasz: Lift: | Nincs Van: 18 m2 Nincs |
| Építési mód: | Tégla | Garázs:Kocsibeálló: | Nincs Van |
| Ingatlan adatai: | |||
|---|---|---|---|
| Hiv. szám: | SZH-B | ||
| Ügyintéző: |
Kiss Balázs +36 70/541-1458 | ||
| Megye: | Vas | ||
| Állapot: | Új ép. | ||
| Település: | Gyöngyösfalu | ||
| Építés éve: | 2026 | ||
| Típus: | Ház | ||
| Tájolás: | NY | ||
| Szobaszám: | 4 | ||
| Fűtés mód: | Hőszivattyús | ||
| Lakóterület: | 75 m2 | ||
| Telek terület: | 677 m2 | ||
| Emelet: | N/A | ||
| Erkély: Terasz: Lift: Kert kapcsolat: | Nincs Van: 18 m2 Nincs Nincs | ||
| Építési mód: | Tégla | ||
| Garázs: Kocsibeálló: | Nincs Van | ||
Megjegyzés:
KIZÁRÓLAG IRODÁNK KÍNÁLATÁBAN!!!
Gyöngyösfalun külön bejárattal rendelkező hőszivattyús téglaépítésű 75 m2-es családi házak várják tulajdonosaikat nagyméretű teraszokkal, dupla gépkocsi beállóval, 677 m2-es telekrésszel, 2026. tavaszi kezdéssel és 2026. év végi várható átadással.
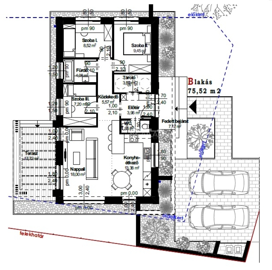
A hirdetésben szereplő B. jelű 677 m2-es telekrészen elhelyezkedő családi ház 75,52 m2-es, nappali, konyha, étkező, 3 szoba, tároló, külön WC, fürdő helyiségekkel rendelkezik, és egy 17,72 m2-es terasz tartozik hozzá, ezen kívül egy dupla gépkocsi beálló, illetve igény szerint garázs is kérhető.
Az ingatlan fűtését, és meleg víz ellátását levegős hőszivattyú biztosítja padlófűtéssel, ezen kívül klímával felszerelt.
A műszaki tartalomból:
- 90 cm mély sávalap beton
- zsalukő lábazat
- tömörített termett talaj
- tömörített vörös kavics 15 cm
- 15 cm vasalt lemezalap
- bitumenes vízszigetelés
- 30 cm Porotherm tégla falazat
- 10 cm-es tégla válaszfalak
- vasbeton koszorú
- könnyűszerkezetes födém és tető vörös betoncseréppel
- 25 cm födémszigetelés
- függesztett gipszkarton álmennyezet
- belül vakolás, festés, hideg-meleg burkolás
- 3 rétegű műanyag nyílászárók, purenit szigeteléssel
- vakolható redőnytok ( redőny nélkül)
- 15 cm hőszigetelés rendszer
- ablakokkal szín azonos eresz, lefolyó
- tömörített murvás szolgalmi út
- napelem előkészítés
Bővebb információval, műszaki tartalommal, alaprajzokkal, irodánkban és az alábbi elérhetőségeinken tudunk szolgálni.
Teljes körű hitelügyintézés!