Szombathely, Oladi plató, Eladó Ház Ár: 79 900 000,- Ft

Ingatlan adatai:
Hiv. szám:KH-16525Ügyintéző: Kiss Balázs
+36 70/541-1458
Megye:VasÁllapot:Új ép.
Település:SzombathelyÉpítés éve:2025
Típus:HázTájolás:É
Szobaszám:5Fűtés mód:Gázkazán
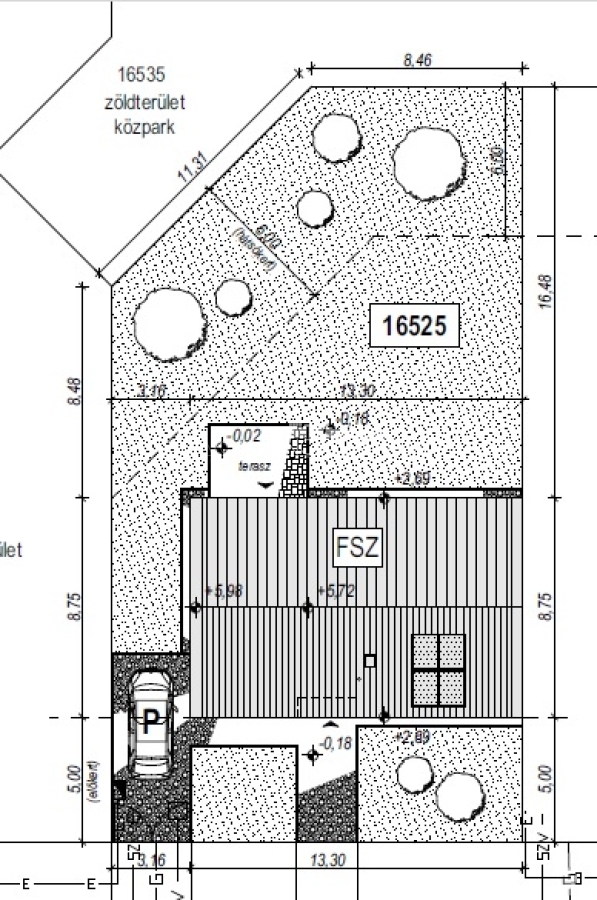
Lakóterület:91 m2Telek terület:466 m2
Emelet:N/AErkély:
Terasz:
Lift:
Nincs
Van: 12 m2
Nincs
Építési mód:TéglaGarázs:Kocsibeálló:Nincs
Van
Ingatlan adatai:
Hiv. szám:KH-16525
Ügyintéző: Kiss Balázs
+36 70/541-1458
Megye:Vas
Állapot:Új ép.
Település:Szombathely
Építés éve:2025
Típus:Ház
Tájolás:É
Szobaszám:5
Fűtés mód:Gázkazán
Lakóterület:91 m2
Telek terület:466 m2
Emelet:N/A
Erkély:
Terasz:
Lift:
Kert kapcsolat:
Nincs
Van: 12 m2
Nincs
Nincs
Építési mód:Tégla
Garázs:
Kocsibeálló:
Nincs
Van

Megjegyzés:

KIZÁRÓLAG IRODÁNK KÍNÁLATÁBAN!!!

CSOK Plusz, Otthon Start 3 %-os állami támogatás igénybe vehető!

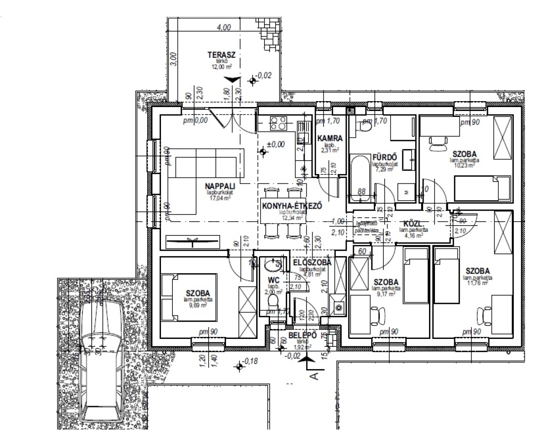
Szombathelyen az Oladi városrész platóján a Kapor utcában, külön álló 91 m2-es új téglaépítésű nappali + 4 szobás családi ház eladó, 12 m2-es terasszal, 466 m2-es telekrésszel, gépkocsi beállóval.

Az ingatlan helyiségei:

  • előszoba lapburkolat 4,81 m2
  • fürdő lapburkolat 7,29 m2
  • kamra lapburkolat 2,31 m2
  • konyha-étkező lapburkolat 12,34 m2
  • közlekedő laminált parketta 4,16 m2
  • nappali lapburkolat 17,04 m2
  • szoba laminált parketta 9,17 m2
  • szoba laminált parketta 9,69 m2
  • szoba laminált parketta 10,23 m2
  • szoba laminált parketta 11,76 m2
  • WC lapburkolat 2,00 m2

Műszaki tartalomról:

  • - Külső határoló és főfalak: 30-as N+F tégla falazóelemből készülnek. A belső válaszfalak 10-es N+F tégla falazóelemből készülnek.
  • - A falazatra felületkezelt fafödém kerül, melybe 25 cm szigetelést helyezünk. A tető hagyományos fa fedélszék, Cserépfedés készül szürke színben. Látszó részek nincsenek festve. Padlásfeljáró kerül beépítésre és köré ( mellé) 6 m2 OSB lefedés. Gipszkarton állmennyezet készül.
  • - Műanyag – kívül antracit, belül fehér - hőszigetelt nyílászárók, háromrétegű üvegezéssel. Külső antracit színű bádog- és belső fehér műanyag párkányokkal. A nyílászárók fölé beépített redőnytokot helyezünk el lefutó nélkül.
  • A beltéri ajtók választhatóak bruttó 75.000,- Ft/db (kilinccsel együtt értendő az ár) ellenében.
  • - Homlokzat 15 cm-es hőszigetelő rendszer, fehér színű dörzsvakolat színezéssel. A lábazaton 10 cm-es XPS lábazati szigetelés fehér dörzsvakolat színezéssel.
  • - Meleg burkolatok 4.000,- Ft bruttó/m2. Alátét fólia 400,- Ft bruttó/m2. Szegélyléc 800,- Ft bruttó/fm.
  • Burkolatváltók felár ellenében készülnek.
  • - Lakásonként kiépítve. Szobánkként 4 konnektor, 1 tv kiállás, 1 kapcsoló, 1 lámpakiállás; konyhában 4 konnektor pluszban egy kiállás az elektromos tűzhelynek, nappaliban 4 konnektor. Teraszon 1 konnektor és kapcsoló. Optikai védőcső előkészítés.
  • A konnektorok, kapcsolók, szerelvények fehér színben beruházó által választva.
  • - Fürdő: Kád, kézmosó, zuhany és csaptelepek beruházó által kiválasztva, Geberit típusú WC beépítve gipszkartonnal ellátva és burkolva.
  • Burkolatok 6.000,- Ft bruttó/m2, csaptelepek 17.000,- Ft bruttó, szifonok 3.500,- Ft bruttó, szaniterek 17.000,- Ft bruttó, kád (170 cm-es) 80.000,- Ft bruttó, kád előlap vagy épített kádat beruházó nem biztosít. Bútor nem készül.
  • Vendég WC:
  • Geberit WC beépítve gipszkartonnal ellátva és burkolva.
  • Burkolatok 6.000,- Ft bruttó, csaptelep 17.000,- Ft bruttó, szifon 3.500,- Ft bruttó, szaniter 17.000,- Ft bruttó. Bútor nem készül.
  • Fűtő és gázüzemű berendezések:
  • A lakásban padlófűtés készül, Bosch 2300-as vagy 1200-es (beruházói választás) kondenzációs kazánnal. Termosztat 17.000,- Ft bruttó. 100 literes indirekt tároló. 
  • Klíma:
  • Nappaliba 1 db 2,5 kw-os beltéri és 1 db kültéri egység 225.000,- Ft bruttó összértékben.
  • - Külső közművek:
  • Villanyóra, vízóra, gázóra
  • Napelem, hőszivattyú opcionálisan kérhető.

Bővebb információval, műszaki tartalommal, alaprajzokkal, irodánkban és az alábbi elérhetőségeinken tudunk szolgálni.

Teljes körű hitelügyintézés!

 

!
!

Érdeklődés

Az alábbi mezőket hibásan töltötte ki:



Adatvédelmi tájékoztató megtekintése

Vissza az előző oldalra
K&HCib BankERSTE BankMBH BankOTP BankUniCredit BankRaiffeisen BankMagNet BANKDuna Bank MBH Csoport