Szombathely, Belváros, Eladó Lakás Ár: 36 900 000,- Ft

Ingatlan adatai:
Hiv. szám:RL-I.8Ügyintéző: Kiss Balázs
+36 70/541-1458
Megye:VasÁllapot:Új ép.
Település:SzombathelyÉpítés éve:N/A
Típus:LakásTájolás:D
Szobaszám:2Fűtés mód:Hőszivattyús
Lakóterület:25 m2Telek terület:N/A m2
Emelet:1Erkély:
Terasz:
Lift:
Kert:
Nincs
Nincs
Van
Nincs
Építési mód:TéglaGarázs:Kocsibeálló:Nincs
Nincs
Ingatlan adatai:
Hiv. szám:RL-I.8
Ügyintéző: Kiss Balázs
+36 70/541-1458
Megye:Vas
Állapot:Új ép.
Település:Szombathely
Építés éve:N/A
Típus:Lakás
Tájolás:D
Szobaszám:2
Fűtés mód:Hőszivattyús
Lakóterület:25 m2
Telek terület:N/A m2
Emelet:1
Erkély:
Terasz:
Lift:
Kert kapcsolat:
Nincs
Nincs
Van
Nincs
Építési mód:Tégla
Garázs:
Kocsibeálló:
Nincs
Nincs

Megjegyzés:

SZOMBATHELY SZÍVÉNEK ÉKSZERDOBOZA…..AZ EGYKORI IKONIKUS ISIS HOTEL,- MAJD ÜZLETHÁZ, MEGÚJUL…… ISIS    Home & Business Center néven válik ismét a város egyik fénypontjává!!

Az ISIS HOTEL Szabó E. Iván tervei alapján, 1968-ban került átadásra. A tervező 1970-ben Ybl-díjat nyert a szombathelyi Isis Szálló tervezéséért.

Hét szinten 25-34-44 m2-es, (igény szerint akár két lakás össze nyitása, így további lakás méretek (50m2,60m2,70m2) megvásárlására is van lehetőség)….A++ energetikai besorolású lakások átlagos áron, nem átlagos helyen, és műszaki tartalommal, a tetőn SkyBarral, melyhez külön üveglifttel juthatunk fel ahol egy ital mellett élvezhetjük a Szombathelyi panorámát.

JELENTŐS KEDVEZMÉNY...90%-OS VÉTELÁR MEGFIZETÉSE ESETÉN, 1 Millió Ft + dupla tároló ( 2 Millió Forint értékben) jár a leendő tulajdonosoknak!!!

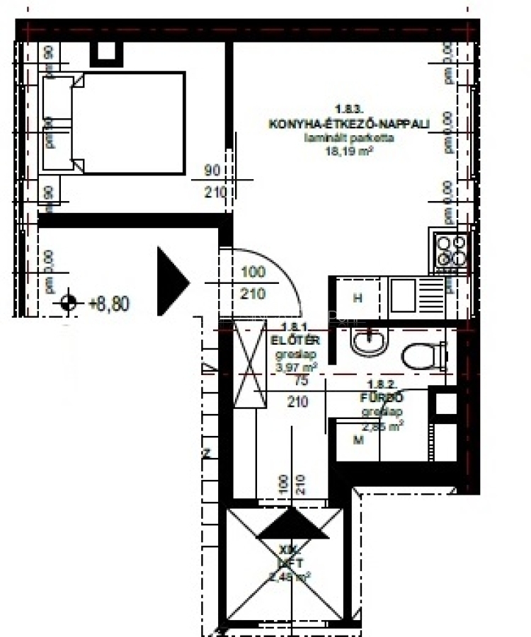
A hirdetésben szereplő ingatlan az első emeleten található, saját lift belépéssel, 25 m2-es, nappali + hálóval, Iseum panorámával, déli fekvésű.

További szabad ingatlanok: https://www.belvarosiip.hu/reszletes-kereso?es_ci_id=&es_cp_id=&room_min=&room_max=&size_min=&size_max=&es_type_id=60&es_constructionmethod_id=&es_code=RL&price_min=&price_max=&es_heating_id=&es_condition_id%5B%5D=136&floor_min=&floor_max=&lot_min=&lot_max=

Az épület teljes körű korszerűsítése, felújítása megkezdődött, és várhatóan 2026 év végén kerül átadásra, műszakilag 15 cm hőszigeteléssel, 3 rétegű új modern 5 kamrás nyílászárókkal felvértezett épületben a földszinti üzletek egy egységes homlokzati megjelenést kapnak alumínium nyílászárókkal, a többi szinten lakások kerülnek kialakításra 25 - 44 m2 nagysággal, nappali,- konyha + hálószoba + fürdő helyiségekkel.

Lesz 7 db olyan exkluzív lakás, ahova liftből a tulajdonos közvetlen a lakásába lép be. Ezek azok a lakások, ahol a tulajdonos az ágyában kortyolgatott kávézás közben az Isis szentély csodálatos panorámáját élvezheti.

Az épület teljes belső felújítása mellett 2 új lift is beépítésre kerül.

A LAKÁSOK FŰTÉSÉT SZINTENKÉNT HŐSZIVATTYÚ BIZTOSÍTJA PADLÓFŰTÉSSEL, LAKÁSONKÉNT EGYEDI MÉRÉSSEL, A HŰTÉST LAKÁSONKÉNT EGY FAN-COIL OLDALFALI EGYSÉGGEL, A MELEG VÍZ ELLÁTÁST SZINTENKÉNT MELEG VÍZ TÁROLÓVAL, KÜLÖN MÉRÉSSEL KÉSZÜL.

AZ ALSÓ SZINTEN még egy légtechnikával ellátott szauna világ és kardió gépekkel felszerelt tulajdonosi fitnesz helység lesz kialakítva, egyfajta Wellness részleg kerül kialakításra, ahol szauna, intim szauna, fitneszterem, öltözők, és vizesblokk kialakítása és berendezése történik meg, MELYNEK MEGVALÓSULÁSA LEGALÁBB 25 WELLNESS TULAJDONOSI RÉSZHEZ (+ 1 MILLIÓ FORINT) KÖTÖTT! !

A PINCE SZINTEN TÁROLÓK KERÜLNEK KIALAKÍTÁSRA, MELYEK MÉRETTŐL FÜGGŐEN 1 MILLIÓ FORINTTÓL MEGVÁSÁROLHATÓK! !

Továbbá a műszaki tartalomról:

- bejáratok előtti lépcső és térkövezés kialakítása

- emeleti szinteken kívül antracit, belül fehér színű 3 rétegű 5 kamrás nyílászárók

- külső ablakkönyöklő alumínium, antracit színben

- válaszfalak: gipszkarton falazat

- lakáselválasztó falazat: Rigips Habito® hang gátló rendszer, MABISZ minősítéssel

- főfalak: meglévő falazat és Rigips Habito® hang gátló rendszer, MABISZ minősítéssel

- földszinti alumínium portálok beépítése

- belső közös terek világos, minőségi járólappal történő burkolása, csempe, járólap, szalagparketta (alátéttel) egységesen bruttó 6.000-, Ft/m2 értékben

- fürdő, vizesblokk: terv szerinti elhelyezéssel

- WC: monoblokkos, bruttó 60 000 Ft értékben

- mosdó csappal: bruttó 40 000 Ft értékben

- zuhany: bruttó 100 000 Ft értékben

- mosógép kiállás, konyhai víz/csatorna kiállás

- automata LED világítás kiépítése

Részletes műszaki tartalommal, fizetési ütemezéssel, alaprajzokkal, és egyéb információkkal, elérhetőségeinken, illetve irodánkban állunk rendelkezésre.

CSOK állami támogatás igénybe vehető! Teljes körű hitelügyintézés!

 

!
!

Érdeklődés

Az alábbi mezőket hibásan töltötte ki:



Adatvédelmi tájékoztató megtekintése

Vissza az előző oldalra
K&HCib BankERSTE BankMBH BankOTP BankUniCredit BankRaiffeisen BankMagNet BANKDuna Bank MBH Csoport